ТРИСТАЕН ОВЧА КУПЕЛ 1452

бул. "Цар Борис III", кв. Овча купел

ПРОДАДЕНО

ТРИСТАЕН ПОД 70000EUR!!! ПРЕДСТАРТОВА ЦЕНА!!! ДОКАЗАН СТРОИТЕЛ!!! НЮ ХОУМ БЪЛГАРИЯ представя на Вашето внимание прекрасен тристаен апартамент. Намира се на спокойно и изключително комуникативно място, на втора линия от бул. "Цар Борис III", който осигурява бърза връзка до центъра на града и околовръстен път. В близост до парк, училища, детски градини, спирки на градски транспорт- автобуси №260, 107, трамвай № 4, 5, 11.
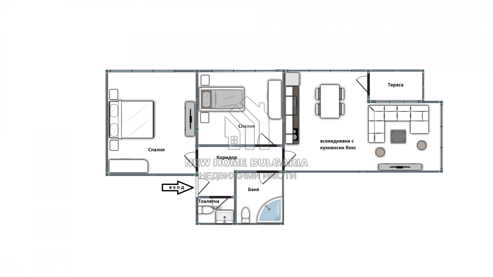
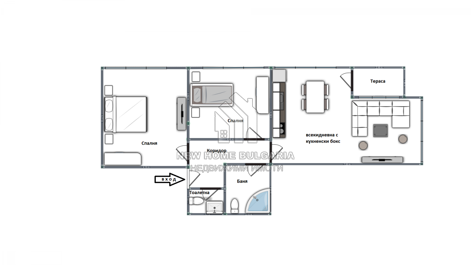
Имотът е със застроена площ от 77кв.м. Състои се от коридор, светла всекидневна с излаз към слънчева тераса, две спални, баня и тоалетна.
Сградата ще разполага със собствен двор и системи за контрол на достъпа.
Към апартамента може да закупите паркомясто или гараж на цени от 6000 до 16 000 EUR.


За повече информация, обадете се СЕГА.

КОД: 1452

92м2 2 2

Детайли

3-стаен
Цена 69 775 EUR
Площ 92м2
Спални 2
Бани 2
Статус Продава / ПРОДАДЕНО
Адрес бул. "Цар Борис III", кв. Овча купел
Етаж 2 /8
Година 2020
Строителство тухла

Характерситики

  • В строеж

Видео

Схема на разпределение

image

Карта

Сподели

Последни оферти

ТОП ПРЕДЛОЖЕНИЯ